Home Past Projects Building A Home Bathrooms, Bedrooms & Kitchens Contact Details

Speculative Development Project


Work Undertaken:-


Land Acquisition, House Concept &

 Detailed Design, Full Planning

Application & Appeal

In association with Bloor Homes

~~~~~~~~~~~~~~~~~~~~~~~~~~~~~~

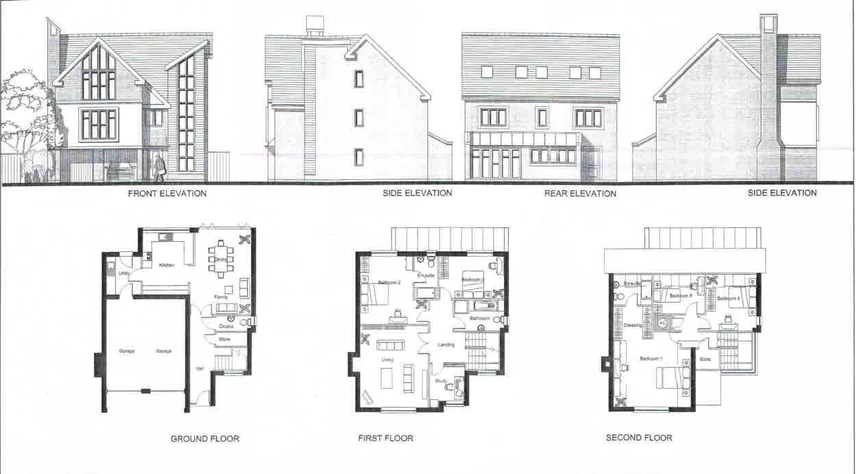
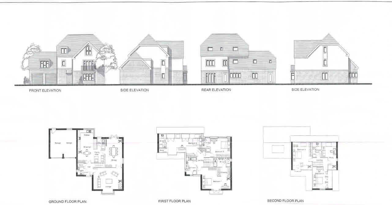
15 New Plots with site layout,

Plot 1 - Plot 2 - Plot 3 - Plot 4 - Plot 5- Plot 6 - Plot 7 - Plot 8 –

 Plot 9 - Plot 10 - Plot 11 - Plot 12- Plot 13 - Plot 14 - Plot 15 - Site Layout


House Design A House Design B House Design E House Design F House Design G 12-15 House Design G 22-26 House Design H Newfeild Road J.jpg House Design K House Design M House Design N